Продам помещение свободного назначения 4920 м.кв.

Объявление в архиве
425 481 802 руб.
4920 м2
Ставрополь , Кулакова проспект, д.7
Дмитрий СБЕРБАНК АСТ
Контактные данные скрыты, так как объявление находится в архиве
Данные актуальны на 02.02.2026
Пожаловаться на объявление
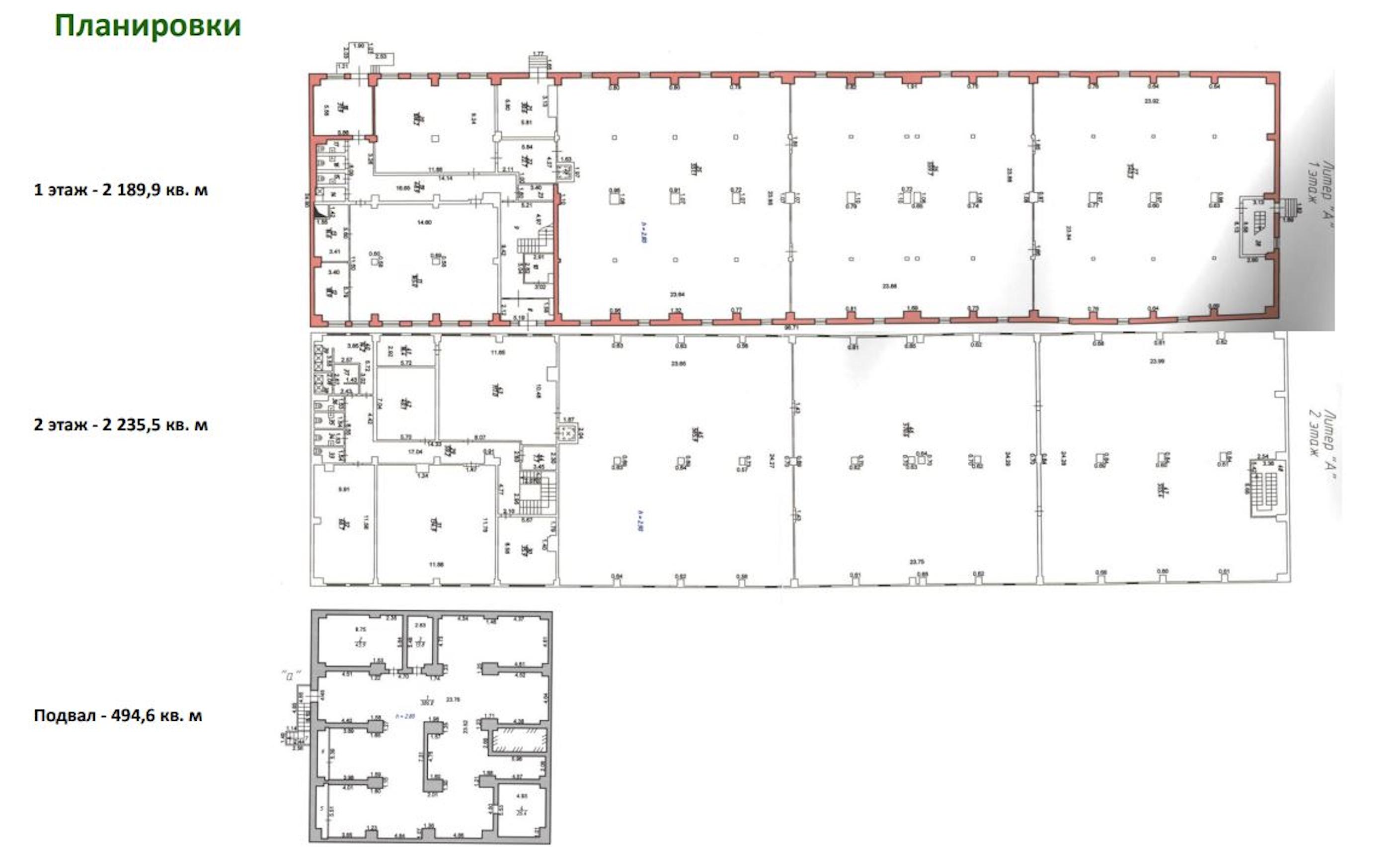
Сбер А предлагает к реализации нежилое здание площадью 4920 кв.м с установленным архивным оборудованием и 49200/208125 доли в праве на земельный участок площадью 17582,0 кв. м, расположенные по адресу: Ставропольский край, г. Ставрополь, пр-кт Кулакова, 7 Реализация посредством проведения торгов на электронной площадке Сбербанк-АСТ. Номер процедуры: SBR065-2601290005 Собственник: Юго-Западный Банк ПАО Сбербанк О лоте: Нежилое помещение общей площадью 4920 м2 Этаж: 1 Дополнительная информация, документы и условия реализации указаны на площадке в разделе «Документы». По всем вопросам, связанным с лотом, обращайтесь в рабочее время по телефону с 09:00 до 18:00 по МСК.

Дополнительная информация

Тип здания Торговый центр Этаж 1 Этажность 1 Количество комнат - Вход Общий Ремонт С ремонтом
Интернет - Кондиционер - Вентиляция - Пожарная сигнализация - Красная линия -
Объекты, находящиеся поблизости
Банки, банкоматы
Сбербанк
Сбербанк 15м
ПАО Сбербанк 239м
ПАО Сбербанк 358м
ПАО Сбербанк 373м
Столовые, кафе
Шаурмиссия 73м
KFC 115м
Анталия, кафе 197м
909 221м
Медучреждения
Вита Экспресс 95м
Автосервис
Лукойл 125м
Мойка 225м
Дон 276м
Газпром 296м
Динамика изменения цен на рынке недвижимости ?

По городу Ставрополь, в категории Универсальные помещения
За последние полгода средняя сумма за кв.м. выросла на 2109 руб. Колебание цен происходило от 23496 руб. до 25851 руб. Тендов к значительному изменению цены в последнем месяце не наблюдается.
Вход в личный кабинет